Skip to main content

Suunnittelemme rakennukset ja piirrämme rakennuslupakuvat.


Myös pienet rakennukset, jotka eivät vaadi rakentamislupaa, suunnitellaan hyvän rakentamistavan mukaisesti. Huolellinen suunnittelu varmistaa rakennuksen toimivuuden, turvallisuuden ja pitkäikäisyyden.

Mitä saat rakennussuunnittelusta

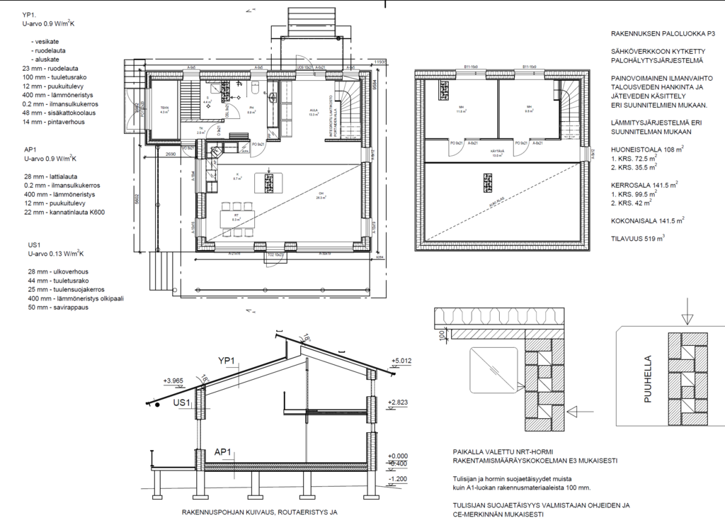
  • Rakennuslupaan soveltuvat pääpiirustukset
    • pohja- leikkus- ja julkisivupiirustukset
    • asemapiirustuksen
    • hormipiirustukset
  • Selkeät ja rakennettavat ratkaisut
    • rakenteet jotka toimivat myös muuttuvassa ilmasto-olosuhteissa
  • Määräysten ja kaavamääräysten huomiointi

Lupakuvien tarkoitus

Rakennussuunnittelun lopputuloksena syntyvät pääpiirustukset eli lupakuvat, joiden tarkoituksena on osoittaa, että rakennus täyttää määräykset ja että hanke voidaan toteuttaa turvallisesti ja hyvän rakentamistavan mukaisesti.


Suunnitteluprosessin kulku

Miten suunnitteluhanke etenee ja mitä vaiheita siinä on

1.) Tarjouspyyntö

Asiakas ottaa yhteyttä ja kertoo tarpeesta rakennuksen suunnittelulle.


Käymme läpi hankkeen laajuuden, rakennuspaikan ja tarpeet.


Tarvittavia lähtötietoja ovat esimerkiksi:

- rakennuspaikan tiedot

- luonnokset tai ideatasoinen hahmotelma

- tieto luvan tarpeesta


Annamme tarjouksen suunnittelusta.


2.) Asiakkaan toiveiden läpikäynti

1. Käymme läpi

- asiakkaan toiveet,

- rakennuspaikan ominaisuudet,

- viranomaismääräykset (kaavamääräykset, rakentamisohjeet)


3.) Karkea luonnostelu talon muodoista ja rakennetyypeistä

Esitetään vaihtoehdot rakentamistavasta ja teknisistä vaihtoehdoista


Asiakas ja muut osapuolet voivat kommentoida suunnitelmia


4.) Luonnossuunnittelu

Laaditaan luonnossuunnitelmat, pohja-, julkisivu- ja leikkauspiirustukset, pinta-alalaskelmat


Asiakas ja muut osapuolet voivat kommentoida suunnitelmia


5.) Viralliset lupakuvat

Laaditaan viralliset lupakuvat, pohja-, julkisivu- ja leikkauspiirustukset rakennetyyppeineen, pinta-alalaskelmineen ja u-arvolaskelmineen


Asiakas ja muut osapuolet voivat kommentoida suunnitelmia

6.) Suunnitelmien esittäminen viranomaiselle

Pääsuunnittelija esittelee kuvat viranomaiselle,

tarvittaessa tehdään viranomaisten edellyttämät muutostyöt.


7.) Laskutus ja jälkityöt

Työ laskutetaan.


Myöhemmin otetaan yhteyttä ja kysytään palautetta, miten rakennushanke sujui ja olisiko niihin liittyen palautetta.


Usein kysytyt kysymykset

Tarvitaanko rakennuslupakuvat aina?

Kaikki rakennukset eivät vaadi rakennuslupaa, mutta suunnittelun tulee silti noudattaa hyvää rakentamistapaa ja määräyksiä.


Suunnitelmat ovat hyödyllisiä myös luvasta vapaissa hankkeissa, joilla varmistetaan rakennuksen määräystenmukaisuus, tilojen käytettötarkoitus ja rakennuksen pitkä-ikäisyys.

Voiko rakennussuunnittelun yhdistää rakennesuunnitteluun?

Kyllä. Rakennus- ja rakennesuunnittelu voidaan sovittaa yhteen, mikä helpottaa kokonaisuuden hallintaa ja vähentää ristiriitoja suunnitelmissa.

Milloin rakennussuunnittelija kannattaa ottaa mukaan?

Rakennussuunnittelija kannattaa ottaa mukaan viimeistään hankkeen luonnosvaiheessa.

Aikainen suunnittelu helpottaa lupakäsittelyä ja vähentää muutostarpeita myöhemmin.

Mikä on rakennuslupakuvien hinta?

Lupakuvien hinta vaihtelee tapauskohtaisesti, yleensä 3000-4000 euroa.

Onko sinulla rakentaminen suunnitteilla?